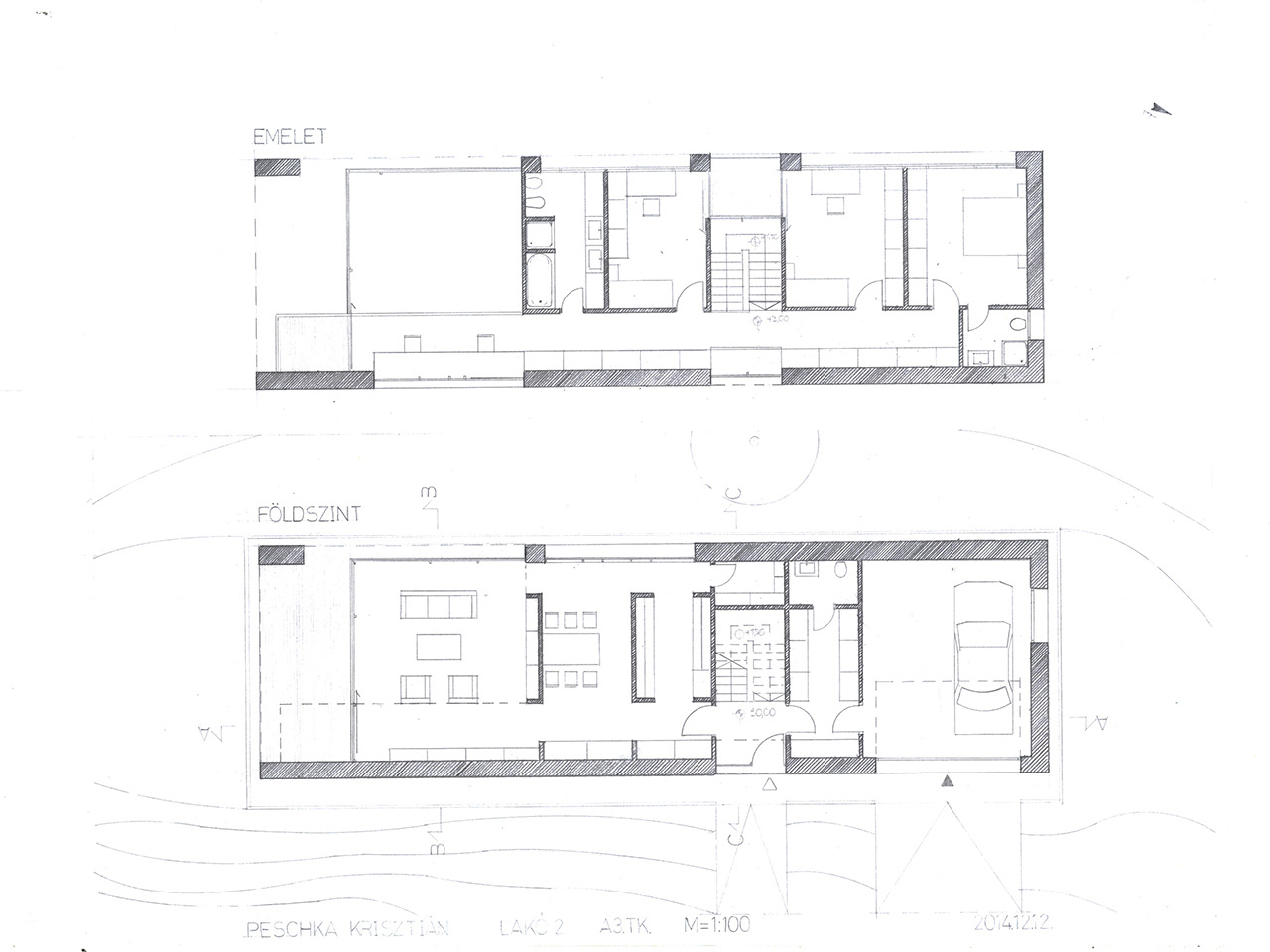
Location: Budapest, District III. Type: University plan Date: 2014 Autumn
Insert copy here, which should vary depending on your region. Accept